Estudo de Rigging
O estudo de rigging é um procedimento de extrema importância em serviços de movimentação e içamento de cargas, para que a segurança e a eficiência desses serviços seja garantida. Investir no estudo de rigging proporciona ao cliente um ótimo custo e benefício, desde que o serviço seja realizado por uma empresa séria e responsável que possa assegurar a obtenção de bons resultados.
POR QUE INVESTIR NO ESTUDO DE RIGGING
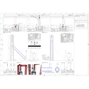
O estudo de rigging consiste na simulação da operação de movimentação ou elevação de cargas, antes que ela seja efetivamente realizada. Essa simulação se dá por um desenho com todas as vistas necessárias e outros detalhes do procedimento, e pode conter também memoriais de cálculo e memoriais descritivos.
Quando é realizado o estudo de rigging, eventuais interferências e obstáculos que poderiam prejudicar o procedimento serão verificados, bem como quaisquer outros elementos presentes na área do serviço. A realização do estudo de rigging garante que o uso de guindastes não crie nenhuma situação de risco, e evita prejuízos causados por danos às ferramentas, ao equipamento ou à saúde e segurança dos colaboradores.
Outros benefícios do estudo de rigging são a otimização de equipamento, a redução de custos do procedimento e a diminuição do prazo da obra. Esse estudo pode ser feito em todo tipo de movimentação de carga, e certamente proporciona um excelente custo e benefício quando realizado adequadamente.
A IPS Engenharia de Rigging é uma empresa líder no estudo de rigging, e oferece serviços da mais alta qualidade, para que os serviços de içamento e movimentação de cargas sejam realizados da maneira mais segura e eficaz possível.
IPS ENGENHARIA DE RIGGING – LÍDER EM ESTUDO DE RIGGING
A IPS Engenharia de Rigging é uma excelente empresa, que atua no segmento de engenharia e projetos. Seu público-alvo são empresas de construção civil, manutenção, indústrias de energia, óleo e gás, mineração e papel e celulose, entre outras e seu atendimento se estende a todos os países da América Latina.
A IPS Engenharia de Rigging possui a certificação ISO 9001:2008, e também tem sua qualidade comprovada pelos diversos prêmios que já ganhou, como Top Crane, em 4 oportunidades, Top Engenharias por 6 anos seguidos e Top Qualidade em 2013.
Para saber mais sobre Estudo de rigging
Ligue para +55 (11) 2087-7999 ou clique aqui e entre em contato por email.
Regiões de São Paulo que Atendemos
- Aclimação
- Bela Vista
- BomRetiro
- Brás
- Cambuci
- Centro
- Consolação
- Higienópolis
- Glicério
- Liberdade
- Luz
- Pari
- República
- Santa Cecília
- Santa Efigênia
- Sé
- Vila Buarque
- Brasilândia
- Cachoeirinha
- Casa Verde
- Imirim
- Jaçanã
- Jardim São Paulo
- Lauzane Paulista
- Mandaqui
- Santana
- Tremembé
- Tucuruvi
- Vila Guilherme
- Vila Gustavo
- Vila Maria
- Vila Medeiros
- Água Branca
- Bairro do Limão
- Barra Funda
- Alto da Lapa
- Alto de Pinheiros
- Butantã
- Freguesia do Ó
- Jaguaré
- Perdizes
- Perús
- Pinheiros
- Pirituba
- Raposo Tavares
- Rio Pequeno
- São Domingos
- Sumaré
- Vila Leopoldina
- Vila Sonia
- Jaraguá
- Jardim Bonfiglioli
- Lapa
- Pacaembú
- Aeroporto
- Água Funda
- Brooklin
- Campo Belo
- Campo Grande
- Campo Limpo
- Capão Redondo
- Cidade Ademar
- Cidade Dutra
- Cidade Jardim
- Grajaú
- Ibirapuera
- Interlagos
- Ipiranga
- Itaim Bibi
- Jabaquara
- Jardim Ângela
- Jardim América
- Jardim Europa
- Jardim Paulista
- Jardim Paulistano
- Jardim São Luiz
- Jardins
- Jockey Club
- M'Boi Mirim
- Moema
- Morumbi
- Parelheiros
- Pedreira
- Sacomã
- Santo Amaro
- Saúde
- Socorro
- Vila Andrade
- Vila Mariana
- Água Rasa
- Anália Franco
- Aricanduva
- Artur Alvim
- Belém
- Cidade Patriarca
- Cidade Tiradentes
- Engenheiro Goulart
- Ermelino Matarazzo
- Guaianazes
- Itaim Paulista
- Itaquera
- Jardim Iguatemi
- José Bonifácio
- Mooca
- Parque do Carmo
- Parque São Lucas
- Parque São Rafael
- Penha
- Ponte Rasa
- São Mateus
- São Miguel Paulista
- Sapopemba
- Tatuapé
- Vila Carrão
- Vila Curuçá
- Vila Esperança
- Vila Formosa
- Vila Matilde
- Vila Prudente
- São Caetano do Sul
- São Bernardo do Campo
- Santo André
- Diadema
- Guarulhos
- Suzano
- Ribeirão Pires
- Mauá
- Embu
- Embu Guaçú
- Embu das Artes
- Itapecerica da Serra
- Osasco
- Barueri
- Jandira
- Cotia
- Itapevi
- Santana de Parnaíba
- Caierias
- Franco da Rocha
- Taboão da Serra
- Cajamar
- Arujá
- Alphaville
- Mairiporã
- Bertioga
- Cananéia
- Caraguatatuba
- Cubatão
- Guarujá
- Ilha Comprida
- Iguape
- Ilhabela
- Itanhaém
- Mongaguá
- Riviera de São Lourenço
- Santos
- São Vicente
- Praia Grande
- Ubatuba
- São Sebastião
- Peruíbe
Regiões
- Selecione uma região
- Rio de Janeiro
- São Gonçalo
- Duque de Caxias
- Nova Iguaçu
- Niterói
- São João de Meriti
- Campos dos Goytacazes
- Petrópolis
- Volta Redonda
- Magé
- Mesquita
- Nova Friburgo
- Barra Mansa
- Macaé
- Cabo Frio
- Itaboraí
- Resende
- Nilópolis
- Teresópolis
- Belford Roxo
- Belo Horizonte
- Uberlândia
- Contagem
- Juiz de Fora
- Betim
- Montes Claros
- Ribeirão das Neves
- Uberaba
- Governador Valadares
- Ipatinga
- Santa Luzia
- Sete Lagoas
- Divinópolis
- Ibirité
- Poços de Caldas
- Patos de Minas
- Teófilo Otoni
- Sabará
- Pouso Alegre
- Barbacena
- Varginha
- Conselheiro Lafeiete
- Araguari
- Itabira
- Passos
- Serra
- Vila Velha
- Cariacica
- Vitória
- Cachoeiro de Itapemirim
- Linhares
- Jaguaré
- Mimoso do Sul
- São Mateus
- Colatina
- Guarapari
- Aracruz
- Viana
- Nova Venécia
- Sooretama
- Anchieta
- Barra de São Francisco
- Santa Maria de Jetibá
- Castelo
- Marataízes
- São Gabriel da Palha
- Domingos Martins
- Pinheiros
- Pedro Canário
- Itapemirim
- Afonso Cláudio
- Alegre
- Baixo Guandu
- Conceição da Barra
- Guaçuí
- Iúna
- Bertioga
- Caraguatatuba
- Cubatão
- Guarujá
- Ilhabela
- Itanhaém
- Mongaguá
- Riviera de São Lourenço
- Santos
- São Vicente
- Praia Grande
- Ubatuba
- São Sebastião
- Peruíbe
- São José dos campos
- Campinas
- Jundiaí
- Sorocaba
- Indaiatuba
- São José do Rio Preto
- Itatiba
- Amparo
- Barueri
- Ribeirão Preto
- Marília
- Louveira
- Paulínia
- Bauru
- Valinhos
- Bragança Paulista
- Araraquara
- Americana
- Atibaia
- Taubaté
- Araras
- São Carlos
- Itupeva
- Mendonça
- Itu
- Vinhedo
- Marapoama
- Votuporanga
- Hortolândia
- Araçatuba
- Jaboticabal
- Sertãozinho
- Curitiba
- Londrina
- Maringá
- Ponta Grossa
- Cascavel
- Castro
- Rolândia
- São José dos Pinhais
- Foz do Iguaçu
- Colombo
- Guarapuava
- Paranaguá
- Araucária
- Toledo
- Apucarana
- Pinhais
- Campo Largo
- Almirante Tamandaré
- Umuarama
- Paranavaí
- Piraquara
- Cambé
- Sarandi
- Fazenda Rio Grande
- Paranavaí
- Francisco Beltrão
- Pato Branco
- Cianorte
- Telêmaco Borba
- Joinville
- Florianópolis
- Blumenau
- Itajaí
- São José
- Navegantes
- Chapecó
- Criciúma
- Jaraguá do sul
- Lages
- Palhoça
- Itapema
- Camboriú
- Balneário Camboriú
- Brusque
- Tubarão
- São Bento do Sul
- Caçador
- Concórdia
- Rio do Sul
- Araranguá
- Gaspar
- Biguaçu
- Indaial
- Mafra
- Canoinhas
- Porto Alegre
- Caxias do Sul
- Pelotas
- Canoas
- Santa Maria
- Alegrete
- Gravataí
- Viamão
- Novo Hamburgo
- São Leopoldo
- Rio Grande
- Alvorada
- Passo Fundo
- Sapucaia do Sul
- Uruguaiana
- Santa Cruz do Sul
- Cachoeirinha
- Bagé
- Bento Gonçalves
- Erechim
- Guaíba
- Cachoeira do Sul
- Santana do Livramento
- Esteio
- Ijuí
- Recife
- Jaboatão dos Guararapes
- Olinda
- Caruaru
- Petrolina
- Paulista
- Surubim
- Cabo de Santo Agostinho
- Camaragibe
- Garanhuns
- Vitória de Santo Antão
- Igarassu
- São Lourenço da Mata
- Abreu e Lima
- Santa Cruz do Capibaribe
- Ipojuca
- Serra Talhada
- Araripina
- Gravatá
- Carpina
- Goiana
- Belo Jardim
- Arcoverde
- Ouricuri
- Escada
- Pesqueira
- Palmares
- Bezerros
- Salvador
- Feira de Santana
- Vitória da Conquista
- Camaçari
- Itabuna
- Juazeiro
- Lauro de Freitas
- Ilhéus
- Jequié
- Teixeira de Freitas
- Alagoinhas
- Barreiras
- Porto Seguro
- Simões Filho
- Paulo Afonso
- Santo Antônio de Jesus
- Valença
- Candeias
- Guanambi
- Jacobina
- Serrinha
- Senhor do Bonfim
- Dias d'Ávila
- Luís Eduardo Magalhães
- Itapetinga
- Irecê
- Campo Formoso
- Eunápolis
- Casa Nova
- Brumado
- Bom Jesus da Lapa
- Conceição do Coité
- Itamaraju
- Itaberaba
- Cruz das Almas
- Ipirá
- Santo Amaro
- Euclides da Cunha
- Fortaleza
- caucacia
- Juazeiro do Norte
- Maracanaú
- Sobral
- Crato
- Itapipoca
- Maranguape
- Iguatu
- Quixadá
- Pacajus
- Crateús
- Aquiraz
- Pacatuba
- Canindé
- Quixeramobim
- São Luís
- Imperatriz
- São José de Ribamar
- Timon
- Caxias
- Codó
- Paço do Lumiar
- Açailândia
- Bacabal
- Balsas
- Barra do Corda
- Teresina
- São Raimundo Nonato
- Parnaíba
- Picos
- Uruçuí
- Floriano
- Piripiri
- Campo Maior
- Goiânia
- Aparecida de Goiânia
- Anápolis
- Rio Verde
- Luziânia
- Águas Lindas de Goiás
- Valparaíso de Goiás
- Trindade
- Formosa
- Novo Gama
- Itumbiara
- Senador Canedo
- Catalão
- Jataí
- Anápolis
- Planaltina
- Caldas Novas
- Campo Grande
- Dourados
- Corumbá
- Ponta Porã
- Maracaju
- Sidrolândia
- Naviraí
- Nova Andradina
- Aquidauana
- Paranaíba
- Três Lagoas
- Amambai
- Rio Brilhante
- Cuiabá
- Várzea Grande
- Sinop
- Tangará da Serra
- Cáceres
- Sorriso
- Lucas do Rio Verde
- Primavera do Leste
- Barra do Garças
- Alta Floresta
- Pontes e Lacerda
- Nova Mutum
- Campo Verde
- Juína
- Rondonópolis
- Colniza
- Manaus
- Parintins
- Itacoatiara
- Manacapuru
- Coari
- Centro Amazonense
- Alvaraes
- Amatura
- Anama
- Anori
- Apui
- Atalaia do Norte
- Codajas
- Eirunepe
- Envira
- Fonte Boa
- Guajara
- Humaita
- Belém
- Ananindeua
- Santarém
- Marabá
- Castanhal
- Parauapebas
- Itaituba
- Cametá
- Bragança
- Abaetetuba
- Bragança
- Marituba
